姫路市田寺東2丁目 貸戸建て
物件番号/1058345844
- 賃 料
- 43,000円
- 共益費
- 0円
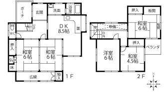
- 間取り
- 5DK
- 専有面積
- 99.6㎡
- 築年月
- 昭和54年3月 (築47年)
- 敷 金
- 1ヶ月
- 礼 金
- 1ヶ月
- 保証金
- -
- 解約引
- -
- 交 通
- JR姫新線 播磨高岡駅 徒歩39分
- 所在地
- 姫路市田寺東2
おすすめポイント
システムキッチン完備!!ペット飼育可能です!閑静な住宅街です♪
設備・周辺情報など
- 路線/駅
- JR姫新線 播磨高岡駅 徒歩39分
- 所在地
- 姫路市田寺東2
- 内 訳
- DK8.5帖、和室6帖、和室6帖、洋室6帖、和室6帖、和室4.5帖
- 種 別
- 貸家
- 階数/階建
- 2階/2階建
- 向 き
- 南
- 構 造
- 木造
- 現 況
- 空室
- 入 居
- 即時
- 契約期間
- 2年
- 取引態様
- 一般媒介
- 駐車場
- 空有
- 設備/条件
- 上水道
- 下水道
- 都市ガス
- 電話
- 給湯
- フローリング
- 洗髪洗面化粧台
- BSアンテナ
- CSアンテナ
- システムキッチン
- シャワー
- 室内洗濯置場
- 収納スペース
- 洗面所独立
- 日当たり良好
- 閑静な住宅街
- ペット相談
- 保証人不要
- 高齢者相談
- 保 険
- 加入要
- 保証会社
- 利用必須 初回保証料 家賃総額の50% 更新料 10,000円/年
- 金銭備考
- 初期費用の分割可能!クレジットカード決済可(分割最大24回払いOK)現地待ち合わせでの内覧可能。
- 周辺施設
- 姫路市立安室東小学校/519m (徒歩7分)
- 姫路市立安室中学校/664m (徒歩9分)
- セブンイレブン姫路田寺7丁目店/452m (徒歩6分)
- 大学など
- -
表示の情報と現況に差異がある場合は現況優先となります。











