明治グランドヒル姫路
物件番号/1058347278
- 賃 料
- 92,000円
- 共益費
- -
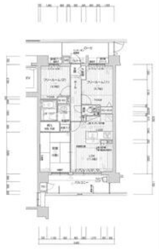
- 間取り
- 3LDK
- 専有面積
- 72.07㎡
- 築年月
- 平成14年5月 (築24年)
- 敷 金
- 1ヶ月
- 礼 金
- 2ヶ月
- 保証金
- -
- 解約引
- -
- 交 通
- JR播但線 京口駅 徒歩20分
- 所在地
- 姫路市河間町
おすすめポイント
設備充実☆床暖房付き!人気の分譲マンションです♪
設備・周辺情報など
- 路線/駅
- JR播但線 京口駅 徒歩20分
- 所在地
- 姫路市河間町
- 内 訳
- LDK11帖、和室6帖、和室6帖、洋室4.5帖
- 種 別
- マンション
- 階数/階建
- 5階/10階建
- 向 き
- 南
- 構 造
- RC
- 現 況
- 空室
- 入 居
- 即時
- 契約期間
- 2年
- 取引態様
- 一般媒介
- 駐車場
- 空無
- 設備/条件
- 上水道
- 下水道
- 都市ガス
- 電話
- 冷房
- 暖房
- 給湯
- フローリング
- エレベーター
- 追焚機能
- 洗髪洗面化粧台
- システムキッチン
- ガスキッチン
- シャワー
- エアコン
- 室内洗濯置場
- バス・トイレ別室
- 浴室乾燥
- 収納スペース
- インターネット対応
- 洗面所独立
- 床暖房
- 駐輪場
- コンロ2口以上
- バイク置場
- 分譲タイプ
- 光ファイバー
- 日当たり良好
- 閑静な住宅街
- 浴室TV
- ペット相談
- 2人入居可
- 保証人不要
- 高齢者相談
- 保 険
- 加入要 21,000円/2年
- 保証会社
- 利用必須 初回保証料:総賃料50%
- 金銭備考
- 初期費用の分割可能!クレジットカード決済可(分割最大24回払いOK)現地待ち合わせで内覧可能
- 周辺施設
- 姫路市立野里小学校/186m (徒歩3分)
- 姫路市立東光中学校/1467m (徒歩19分)
- セブンイレブン姫路伊伝居店/347m (徒歩5分)
- マックスバリュ城北店/1224m (徒歩16分)
- 大学など
- -
表示の情報と現況に差異がある場合は現況優先となります。








