ウエリス姫路
物件番号/1058343984
- 賃 料
- 140,000円
- 共益費
- 20,000円
- 間取り
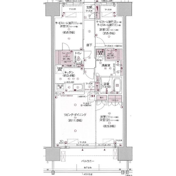
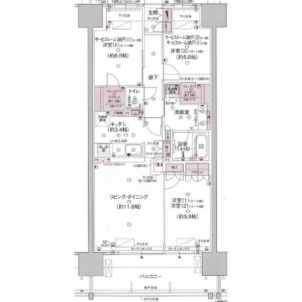
- 1SLDK
- 専有面積
- 74.42㎡
- 築年月
- 令和6年2月 (築2年)
- 敷 金
- 2ヶ月
- 礼 金
- 1ヶ月
- 保証金
- -
- 解約引
- -
- 交 通
- 山陽電鉄線 山陽姫路駅 徒歩3分
JR山陽本線 姫路駅 徒歩5分
山陽電鉄線 手柄駅 徒歩20分 - 所在地
- 姫路市忍町
おすすめポイント
姫路駅徒歩3分!都市ガスで経済的☆人気の分譲タイプ!
設備・周辺情報など
- 路線/駅
- 山陽電鉄線 山陽姫路駅 徒歩3分
JR山陽本線 姫路駅 徒歩5分
山陽電鉄線 手柄駅 徒歩20分 - 所在地
- 姫路市忍町
- 内 訳
- LDK15帖、洋室6.5帖、S5.6帖、洋室5.9帖
- 種 別
- マンション
- 階数/階建
- 8階/15階建
- 向 き
- 南
- 構 造
- RC
- 現 況
- 空室
- 入 居
- 即時
- 契約期間
- 2年
- 取引態様
- 一般媒介
- 駐車場
- 空無
- 設備/条件
- 上水道
- 下水道
- 都市ガス
- 電話
- 冷房
- 暖房
- 給湯
- フローリング
- エレベーター
- オートロック
- 追焚機能
- 洗髪洗面化粧台
- システムキッチン
- バルコニー
- 宅配ボックス
- ガスキッチン
- シャワー
- エアコン
- 室内洗濯置場
- バス・トイレ別室
- 温水洗浄便座
- TVモニターホン
- 浴室乾燥
- 収納スペース
- インターネット対応
- 洗面所独立
- カウンターキッチン
- W・INクローゼット
- 床暖房
- 24時間セキュリティシステム
- 駐輪場
- コンロ2口以上
- バイク置場
- 分譲タイプ
- 光ファイバー
- 日当たり良好
- 閑静な住宅街
- インターネット無料
- 食器洗い乾燥機
- ペット相談
- 2人入居可
- 保証人不要
- 高齢者相談
- 保 険
- 加入要 25,000円/2年
- 保証会社
- 利用必須 初回保証料 月額家賃の100% 月額:賃料総額の2%
- 金銭備考
- 初期費用の分割可能!クレジットカード決済可(分割最大24回払いOK) 除菌施工費:29,700円 リロサポ:1,500円
- 周辺施設
- 白鷺小学校/844m (徒歩11分)
- 白鷺中学校/898m (徒歩12分)
- コンビニ/150m (徒歩2分)
- 大学など
- -
表示の情報と現況に差異がある場合は現況優先となります。
お問い合わせ·内覧予約は
同じ建物の他の空室
- 階
- 家賃/
共益費 - 敷金/
礼金 - 間取り/
専有面積

5階- 22.0万円
- - 1ヶ月
2ヶ月 - 2SLDK
81.13m²

9階- 25.0万円
- - 1ヶ月
2ヶ月 - 2SLDK
81.13m²












