サンサージュ加納原田
物件番号/1058339264
- 賃 料
- 125,000円
- 共益費
- 0円
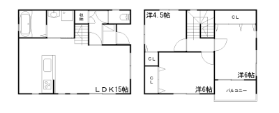
- 間取り
- 3LDK
- 専有面積
- 75.76㎡
- 築年月
- 令和7年3月 (築1年)
- 敷 金
- 1ヶ月
- 礼 金
- 2ヶ月
- 保証金
- -
- 解約引
- -
- 交 通
- JR山陽本線 御着駅 徒歩23分
- 所在地
- 姫路市花田町加納原田
おすすめポイント
人気の戸建ファミリー物件!駐車場2台込で経済的!最新の設備完備でおススメ☆
設備・周辺情報など
- 路線/駅
- JR山陽本線 御着駅 徒歩23分
- 所在地
- 姫路市花田町加納原田
- 内 訳
- LDK15帖、洋室6帖、洋室6帖、洋室4.5帖
- 種 別
- 貸家
- 階数/階建
- 1階/2階建
- 向 き
- 南
- 構 造
- 木造
- 現 況
- 空室
- 入 居
- 即時
- 契約期間
- 2年
- 取引態様
- 一般媒介
- 駐車場
- 空有
- 設備/条件
- 上水道
- 下水道
- 電話
- 給湯
- フローリング
- 洗髪洗面化粧台
- システムキッチン
- バルコニー
- シャワー
- 室内洗濯置場
- バス・トイレ別室
- 温水洗浄便座
- TVモニターホン
- IHコンロ
- 収納スペース
- インターネット対応
- 洗面所独立
- カウンターキッチン
- 駐輪場
- 角部屋
- コンロ2口以上
- バイク置場
- 室外洗濯置場
- 光ファイバー
- 日当たり良好
- 閑静な住宅街
- メゾネット
- ペット相談
- 2人入居可
- 保証人不要
- 高齢者相談
- 保 険
- 20,000円
- 保証会社
- 利用必須 初回保証料 月額賃料の50%
- 金銭備考
- 初期費用の分割可能!クレジットカード決済可(分割最大24回払いOK)短期解約違約金有り
- 周辺施設
- 花田小学校/1131m (徒歩15分)
- 花田中学校/2673m (徒歩34分)
- 大学など
- -
表示の情報と現況に差異がある場合は現況優先となります。




































