ノーブル大津
物件番号/1058341751
- 賃 料
- 57,000円
- 共益費
- 0円
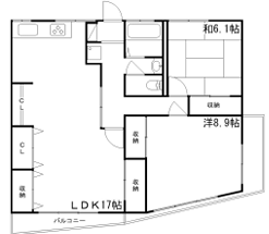
- 間取り
- 2LDK
- 専有面積
- 77.17㎡
- 築年月
- 昭和49年6月 (築52年)
- 敷 金
- 0円
- 礼 金
- 1ヶ月
- 保証金
- -
- 解約引
- -
- 交 通
- 山陽電気鉄道網干線 山陽天満駅 徒歩12分
JR山陽本線 はりま勝原駅 徒歩16分
山陽電気鉄道網干線 広畑駅 徒歩23分 - 所在地
- 姫路市大津区北天満町
おすすめポイント
駅まで徒歩圏内の賃貸物件!周辺環境充実!閑静な住宅街でおススメ☆
設備・周辺情報など
- 路線/駅
- 山陽電気鉄道網干線 山陽天満駅 徒歩12分
JR山陽本線 はりま勝原駅 徒歩16分
山陽電気鉄道網干線 広畑駅 徒歩23分 - 所在地
- 姫路市大津区北天満町
- 内 訳
- LDK17帖、洋室8.9帖、和室6帖
- 種 別
- アパート
- 階数/階建
- 3階/3階建
- 向 き
- 南
- 構 造
- 鉄骨造
- 現 況
- 空室
- 入 居
- 即時
- 契約期間
- 2年
- 取引態様
- 一般媒介
- 駐車場
- 空有 8,800円/月
- 設備/条件
- 上水道
- 下水道
- プロパンガス
- 電話
- 給湯
- フローリング
- 追焚機能
- 洗髪洗面化粧台
- バルコニー
- ガスキッチン
- シャワー
- 室内洗濯置場
- バス・トイレ別室
- TVモニターホン
- 収納スペース
- インターネット対応
- 洗面所独立
- 駐輪場
- 角部屋
- コンロ2口以上
- バイク置場
- 光ファイバー
- 日当たり良好
- インターネット無料
- 2人入居可
- 保証人不要
- 高齢者相談
- 保 険
- 加入要 20,000円/2年
- 保証会社
- 利用必須 初回保証料 賃料総額の50%
- 金銭備考
- 初期費用の分割可能!クレジットカード決済可(分割最大24回払いOK)現地待ち合わせでの内覧可能。
- 周辺施設
- 広畑第二小学校/1124m (徒歩15分)
- 広畑中学校/987m (徒歩13分)
- コンビニ/200m (徒歩3分)
- 大学など
- -
表示の情報と現況に差異がある場合は現況優先となります。








